Block 117 Architects +

ECOLE PRIMAIRE HABERE POCHE

MAÎTRISE D’OUVRAGE : MAIRIE HABERE POCHE

PROGRAMME : CONSTRUCTION D’UNE ECOLE

LOCALISATION : HABERE POCHE (74)

LIVRAISON : 2014

SURFACE : 1 600 M²

MONTANT HT TRAVAUX : 2,32 M€

NOS MISSIONS : MISSION COMPLETE

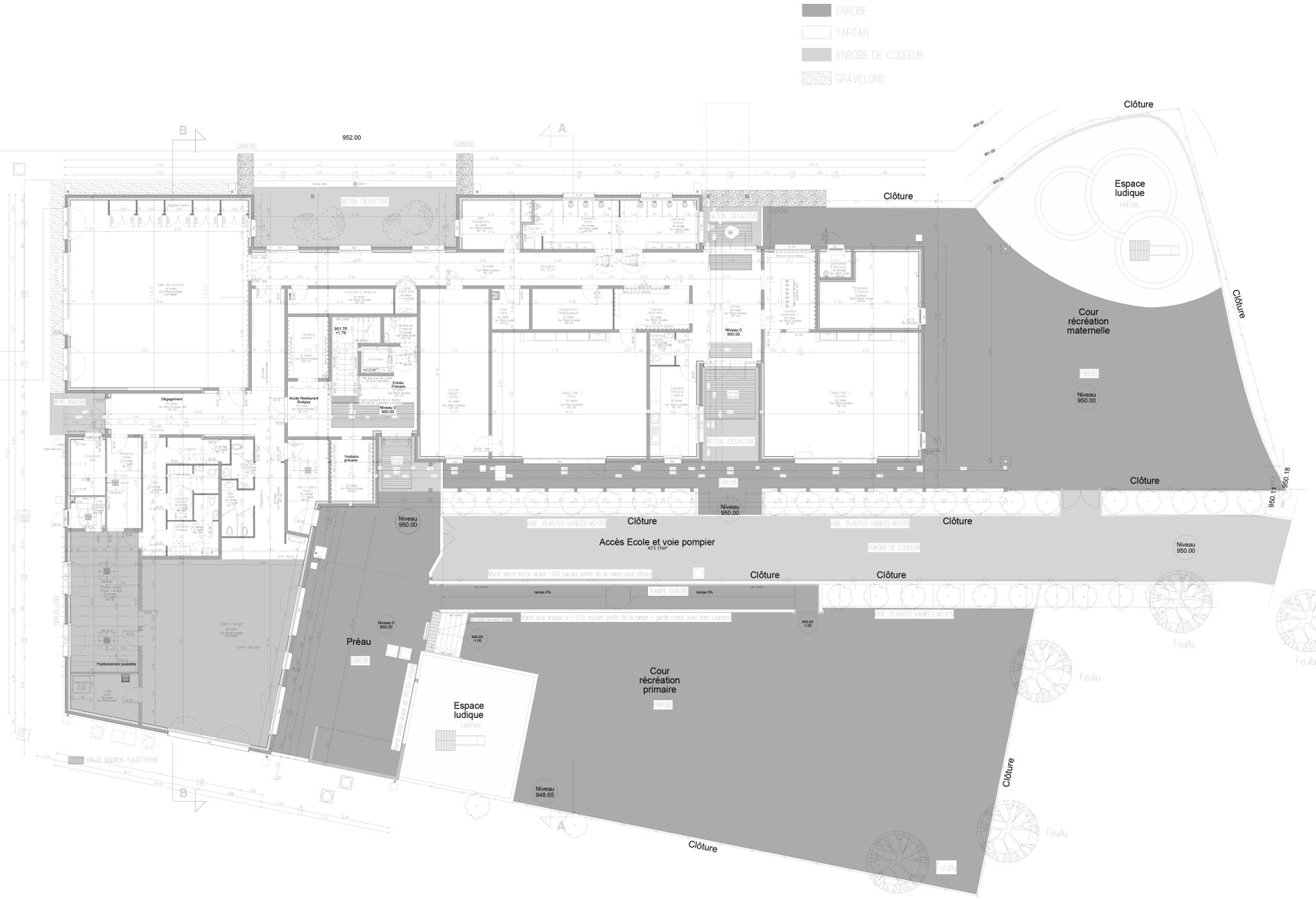
Implantée sur la zone la moins pentue du terrain, l’école de Habère-Poche s’organise en deux volumes distincts. Le premier, orienté Nord-Sud, accueille les salles de classe et les espaces enseignants sur trois niveaux (R+1+combles). À l’ouest, un volume de plain-pied abrite le restaurant scolaire. Le rez-de-chaussée, en enduit ou en pierre de Luzerne, ancre solidement le bâtiment au sol. Les niveaux supérieurs sont réalisés en ossature bois, habillés d’un bardage horizontal en mélèze naturel, affirmant une écriture architecturale à la fois sobre et ancrée dans son environnement montagnard.