Block 117 Architects +

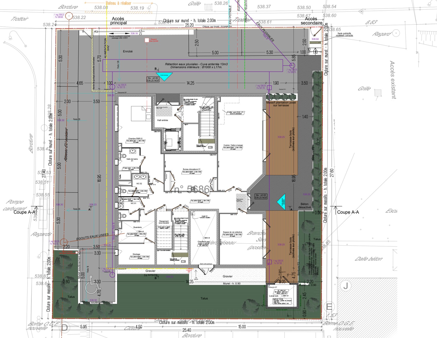
SESSAD - ASSOCIATION LE CHAMPIONNET

MAÎTRISE D’OUVRAGE : ASSOCIATION LE CHAMPIONNET

PROGRAMME : CONSTRUCTION DE LOGEMENTS POUR JEUNES EN DIFFICULTÉ ET DE BUREAUX POUR L’ASSOCIATION.

LOCALISATION : SALLANCHES (74)

LIVRAISON : 2022

SURFACE : 707 M²

MONTANT HT TRAVAUX : 1,22 M€

NOS MISSIONS : MISSION COMPLETE

Ce projet architectural propose un bâtiment hybride combinant bureaux au rez-de-chaussée et logements modernes aux étages. Il s’agit du bâtiment du SESSAD de l’Association du Championnet, situé à Sallanches (74700). Le programme vise à accueillir à la fois les activités du service et des jeunes en réinsertion. Il met l’accent sur l’humain et l’écologie, avec des espaces extérieurs conviviaux. L’architecture à double peau favorise une ventilation naturelle et améliore l’esthétique. Le bâtiment comprend une zone dédiée aux jeunes, avec chambres et espaces partagés. Ces lieux collectifs (salons, cuisines) renforcent le lien social. Le projet allie durabilité, bien-être et inclusion sociale.